Loading...
Logo

Commercial/Retail Uses

Ammon’s steadily growing industry sectors include office, professional uses and retail. This increasing demand will facilitate the development of the Ammon Town Center. The Ammon Town Center is a 60-acre mixed-use development proposed for property located at the southeast corner of Ammon Lincoln and Sunnyside Road. Current users include Maverik's. The anticipated $60,000,000 capital investment will create a pedestrian-friendly town center area with public plazas and green spaces incorporated into the mixed-use development. Proposed uses in the Ammon Town Center include upscale dining, retail shops, car wash, multi-story business uses, technology office, medical and professional offices, and residential uses integrated within the project.


Project

Welcoming Street Scape

Ammon Town Center will offer appealing entries with architecture that embraces, and welcomes. Pedestrian friendly sidewalks and greenscape paths will connect the various uses within Ammon Town Center.

Project

Two Story Mixed Use

Ammon Town Center will anchor the main core with two story mixed use buildings that may include retail on the first level and office on the second level.

Project

Low Profile Retail

Portions of the Ammon Town Center will include low profile retail, blending into other uses and residential areas.

Project Site Plan

Our design team worked to design important ways to create public gathering spaces- to find places to breathe, to pause, to share ideas, to gather
and be productive as social animals, which is why cities came to be 9,000 years ago. We wanted to place a high value on the "people factor".

iPhone

Roundabouts

Ammon Town Center will include a central roundabout for convenient access to the all parts of the project. The project design will complement and focus on walkability.

Walkability

Ammon Town Center will include trail system within the project to offer pedestrian connectivity between the various development uses within ATC. We believe with active planning, a city-wide trail system can originate here at ATC.

Gathering Place

It is our hope that the Ammon Town Center will become a gathering place for families to spend time, dine, and engage in recreational activities. As the project moves forward, we encourge City and public uses to be incorporated within the ATC.

Integration of Services

The core idea behind the Ammon Town Center is to provide a development that offers resturants, groceries, entertainment, green open space, and pleasant gathering areas where you work, and live.

Mixed Use Office integrated into
Ammon Town Center

iPad

Technology Campus

From incubator space to technology headquarters, Ammon Town Center invites you to consider the possibilty and potential to locate here..

Professional Office

Ammon Town Center will include general use Professional Office. We encourage a diverse base of office tenants. We anticipate one, two and three story office buildings. The ATC master plan proposes approximately 82000 square feet of office use. We can design and build the office product tailored for either a single tenant, or multiple tenants. The office product will have direct access to the pedestrian pathways to encourge walkability.

Medical Office

The location of the Ammon Town Center, east of the Eastern Regional Medical Center, offers strategic opportunities for medical professionals to design, build and own their medical offices.

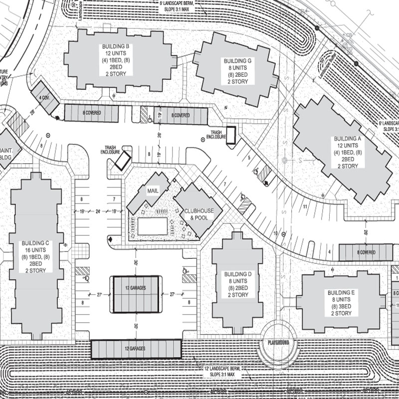
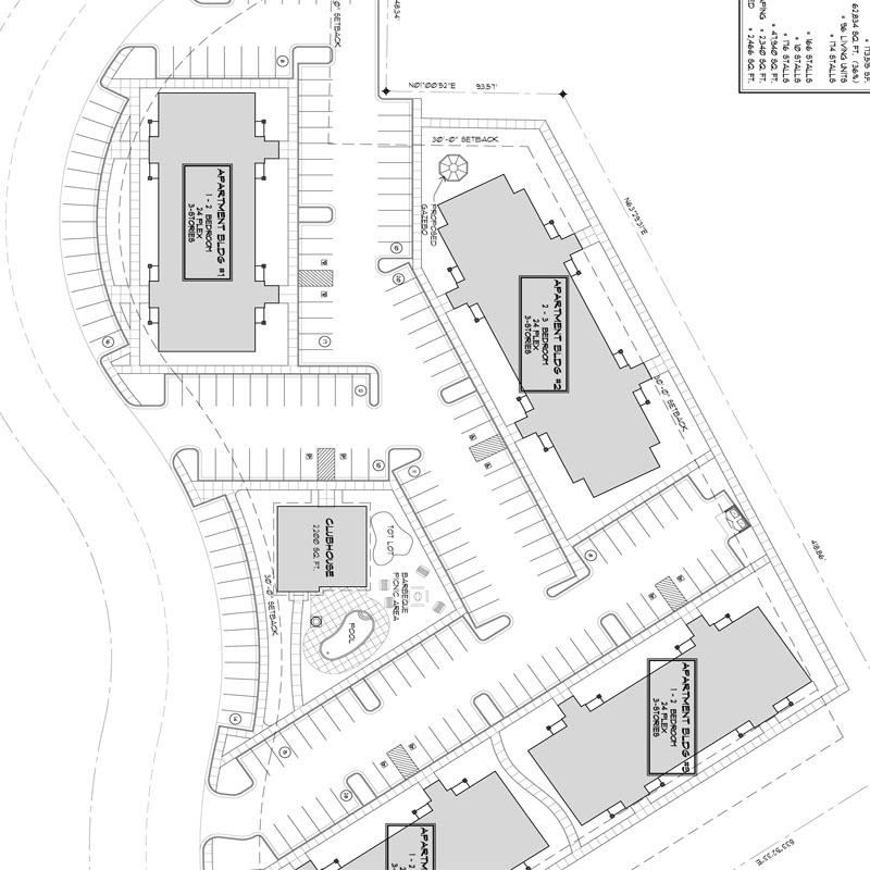
Multifamily Designs

Project
Site Plan
Project
Clubhouse
Project
Site Plan
Project
3 Story Elevation
Project
2 Story Elevation
Project
2 Story Elevation
Project
2 Story Elevation
Project
Site Plan
Project
2 Story Elevation
Project
2 Story Elevation

Flex Space

The Ammon Town Center will include approximately 60000 square feet of Flex Space
We anticipate the flex building size to be 9000 sq. feet divisable to 1500 sq. feet.

Photo

Innovative Flex

Single Story
Photo

Business Flex

Single Story
Photo

Tilt Up Flex

Two Story

Single Family Homes

Ammon Town Center will include some small lot, single family residential.
We anticipate including a high density small lot PUD product within ATC.

Photo
Photo
Photo

About Prodo theme

Vestibulum sit amet sagittis nibh, at tempor lorem.
Donec iaculis urna at dapibus dignissim.